Designing the future with sharper documentation and cleaner product development.

Professional CAD design, drafting, and engineering consulting in Huntsville, Alabama.

MM Design Services supports industrial equipment and product teams with precision 3D modeling, manufacturing-ready drawing packages, electronic packaging, reverse engineering, additive manufacturing, and structural analysis.

PTC Creo SolidWorks Blender KeyShot FEMAP / NX NASTRAN
Engineering blueprint and drafting background
Huntsville-based support CAD design, drafting, modeling, and analysis support for product teams that need clear technical communication.
Sheet metal enclosure render
Electronic Packaging

Concept-to-prototype enclosure design with clean geometry and manufacturing intent.

Finite element analysis visualization
Structural Analysis

FEM-driven insight for stronger decisions before fabrication.

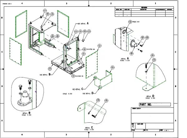
Manufacturing drawing package detail
Drafting Packages

Detailed drawings built for manufacturing clarity and revision control.

0 Years of analysis experience
ASME Y14.100 drawing standard support
From concept to fabrication

3D CAD models, renderings, and detailed manufacturing drawings in one streamlined workflow.

Built for real production

Sheet metal prototypes, aluminum housings, low-run assemblies, tolerance checks, and print-ready deliverables.

Aerospace-informed analysis

Experience shaped by military aircraft and launch vehicle structural work, applied to practical product development.

Core services

Full-service support from concept development to manufacturing-ready documentation.

From early-stage CAD models to final drawings, MM Design Services helps clients move projects forward with better clarity, speed, and design intent.

3D CAD model rendering
01

CAD Design & 3D Modeling

Precision models for product development, presentations, manufacturing, and 3D printing.

View page
Engineering drafting package
02

Drafting Services

Manufacturing-ready drawing packages prepared with clean detail, layout consistency, and standards in mind.

View page
Electronic packaging assembly render
03

Electronic Packaging

Packaging design for prototypes, sheet metal builds, and aluminum housings including EMI-focused concepts.

View page
Additive manufacturing 3D printed part
04

Additive Manufacturing

Rapid prototype support for design validation, jigs, fixtures, tooling, and small-batch customization.

View page
Reverse engineered part comparison
05

Reverse Engineering

Scan-to-CAD workflows for parts without drawings, including model recreation and print-ready outputs.

View page
Structural analysis heat map
06

Structural Analysis

Finite element modeling, vibration studies, bolted joint checks, and classical hand calculations.

View page
Selected capability highlights

Selected capability highlights for modern product development and manufacturing support.

Mechanical design support

From design concepts to clean documentation and production support.

Support includes product visualization, technical documentation, prototype workflows, and engineering communication that stays clear at every stage.

  • Concept development and design refinement
  • Manufacturing-ready drawings and documentation
  • Prototype, scan-to-CAD, and analysis support
Blueprint background showing design intent
3D printed prototype
Prototype workflow

3D print and validate fast.

Useful for product development, fixtures, functional checks, and small-batch iterations.

Scanned part and CAD comparison
Scan to CAD

Recover geometry when drawings do not exist.

Rebuild models from physical parts, compare scan data, and generate clean production documentation.

Technical detail

Drawings that reduce ambiguity.

Well-structured drafting improves communication between design, fabrication, and assembly teams.

Detailed drafting sheet
Typical workflow

A straightforward workflow from discovery to deliverables.

01

Discover

Review the product, constraints, packaging needs, analysis goals, and expected deliverables.

02

Model

Build accurate CAD geometry, visual assets, or layout studies that capture the design intent clearly.

03

Validate

Apply drafting discipline, tolerance thinking, prototype feedback, or structural analysis as needed.

04

Deliver

Package drawings, models, renderings, and outputs in a cleaner format for the next stage of work.

Capabilities built around common project needs

Services aligned with what product teams often need most: CAD, drafting, reverse engineering, prototypes, and analysis.

  • Engineering consulting in Huntsville, Alabama
  • 3D modeling and manufacturing drawing packages
  • Electronic packaging and enclosure development
  • Additive manufacturing and prototype validation
Start a free estimate

Need CAD design, drafting, or engineering consulting support?

Share the scope, timeline, and service you need. This quick form helps start a free estimate and makes it easier to move from inquiry to project discussion.

Phone (256) 306-4614 Email murdockm@yahoo.com
Location Huntsville, AL 35899
Hours Mon–Fri 8am–4pm • Sat 8am–Noon

This front-end form opens the visitor’s email app and prepares a message to MM Design Services.